Các sản phẩm
TRANG CHỦ > Sản phẩm
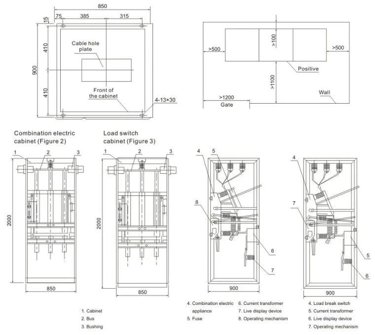
Thiết bị đóng cắt vòng kín cố định 35kV để phân phối
  • Thiết bị đóng cắt vòng kín cố định 35kV để phân phốiThiết bị đóng cắt vòng kín cố định 35kV để phân phối

Thiết bị đóng cắt vòng kín cố định 35kV để phân phối

Comewill là nhà sản xuất chuyên nghiệp tại Trung Quốc. Thiết bị đóng cắt vòng kín cố định 35kV của chúng tôi dùng để phân phối (sau đây gọi là "thiết bị chính vòng") để phân phối điện. Đây là thiết bị đóng cắt điện áp cao được thiết kế đặc biệt cho hệ thống phân phối điện, phù hợp với nhu cầu mua sắm và lựa chọn của các dự án cơ sở hạ tầng điện và là lựa chọn lý tưởng cho các quyết định mua sắm.

Là thiết bị cốt lõi để kiểm soát và bảo vệ mạng phân phối, thiết bị đóng cắt vòng cố định 35kV chất lượng cao của Comewill để phân phối được sản xuất tại Trung Quốc có thể tạo ra nguồn điện ổn định đáng tin cậy trong nhiều tình huống ứng dụng khác nhau, chẳng hạn như các dự án cải tạo và xây dựng lưới điện đô thị, các doanh nghiệp công nghiệp và khai thác mỏ, các tòa nhà cao tầng và các cơ sở công cộng đáp ứng đầy đủ các yêu cầu cốt lõi của người mua về hiệu suất thiết bị.

Thiết bị chính vòng tròn có thiết kế cố định này đã trở thành sản phẩm được ưa chuộng khi mua sắm hệ thống phân phối điện hiện đại, mang đến cho bạn cấu hình cơ sở hạ tầng điện hiệu quả về mặt chi phí.

Dữ liệu kỹ thuật

Số seri Mục Đơn vị dữ liệu
1 Điện áp định mức kV 12 40.5
2 Tần số định mức Hz 50/60
3 Đánh giá hiện tại A 630 630/1250
4 Điện áp chịu được tần số công suất định mức (1 phút) Các pha và với trái đất kv 42 95
Khoảng cách cách ly 48 118
Điện áp chống sét định mức Các pha và với trái đất 75 185
Khoảng cách cách ly 85 215
Điện áp chịu được tần số nguồn (Mạch điều khiển và phụ trợ) 2
5 Dòng điện chịu được thời gian ngắn định mức kA 25/20 31.5
6 Dòng điện chịu được đỉnh định mức kA 50/63 80
7 Thời lượng dòng điện ngắn mạch định mức s 4 4
8 Dòng điện ngắn mạch định mức kA 25/20 31.5
9 Dòng điện ngắn mạch định mức kA 50/63 80
10 Thời gian hồ quang s 1 1
11 Trình tự vận hành định mức
0-0,3s-CO-3 phút-CO
12 Khí cách điện
SF6
13 Tỷ lệ rò rỉ hàng năm % ≤ 0,01
14 Mức độ bảo vệ tiêu chuẩn Hộp khí kín
IP67
Vỏ thiết bị đóng cắt IP4X
15 Áp lực lạm phát định mức MPa 0.03
Áp suất mức chức năng tối thiểu 0.01
16 Điện áp cung cấp định mức của mạch phụ V DC 24, 48, 110, 220, AC220
17 Tuổi thọ cơ khí Bộ ngắt mạch Hoạt động 10000 11000
Công tắc cách ly 5000 3000
Công tắc nối đất 5000 3000
18 Độ bền điện của máy cắt Hoạt động 30(E2)
19 Mất tính liên tục của dịch vụ
LSC2

Thông số môi trường hoạt động kỹ thuật

·Nhiệt độ môi trường: -10°C ~ +40°C
·Độ cao: Cao thế 1000m; Điện áp thấp 2500m (thiết kế tùy chỉnh có sẵn để mua sắm trên phạm vi)
·Độ ẩm tương đối: ≤85%
·Cường độ địa chấn: ≤ độ lớn 8
·Điều kiện tiên quyết về môi trường: Không có nguy cơ cháy/nổ, không gây ô nhiễm nghiêm trọng, không ăn mòn hóa học, không rung lắc mạnh (địa điểm mua sắm phải đáp ứng những điều này)

Thông qua những nỗ lực không mệt mỏi của tất cả nhân viên, chúng tôi liên tục cải thiện quản lý chất lượng để đảm bảo rằng thiết bị đóng cắt vòng kín cố định 35kV dành cho phân phối của chúng tôi vẫn là nguồn tin cậy đối với khách hàng. Mục tiêu của chúng tôi là cung cấp cho khách hàng hệ thống thử nghiệm toàn diện nhất và các giải pháp phù hợp nhất, tối đa hóa sự hài lòng của khách hàng. Chúng tôi tuân thủ các nguyên tắc đặt khách hàng lên hàng đầu, định hướng thị trường và hiệu quả, đồng thời không ngừng trau dồi tài năng của mình.

Thẻ nóng: thiết bị chính dạng vòng bọc kim loại, Trung Quốc, nhà sản xuất, nhà máy, giá cả, Công tắc ngắt tải không khí 630A, LBS gas 24kv trong nhà, Công tắc ngắt kết nối SF6, Máy cắt chân không bọc sứ ngoài trời, Máy biến điện áp một pha 20kV, Thiết bị đóng cắt mạch chân không cách điện bằng không khí

Thẻ nóng: Thiết bị đóng cắt vòng cố định 35kV để phân phối, Trung Quốc, Nhà sản xuất, Nhà cung cấp, Nhà máy, Bán buôn, Tùy chỉnh, còn hàng, Sản xuất tại Trung Quốc, Giá thấp, Chất lượng
Gửi yêu cầu
Thông tin liên lạc
  • Địa chỉ

    Số 777 Đường Wanweng, Tiểu khu Wengyang, Thành phố Nhạc Thanh, Thành phố Ôn Châu, Tỉnh Chiết Giang, Trung Quốc

  • điện thoại

    +86-15224149953

Gửi yêu cầu tới Comewill về thiết bị đóng cắt, cầu dao chân không, máy biến dòng. Nhận báo giá tùy chỉnh, giá thấp hoặc hỗ trợ chuyên gia từ nhóm nhà máy Trung Quốc của chúng tôi.
X
Chúng tôi sử dụng cookie để cung cấp cho bạn trải nghiệm duyệt web tốt hơn, phân tích lưu lượng truy cập trang web và cá nhân hóa nội dung. Bằng cách sử dụng trang web này, bạn đồng ý với việc chúng tôi sử dụng cookie. Chính sách bảo mật
Từ chối Chấp nhận